 
 
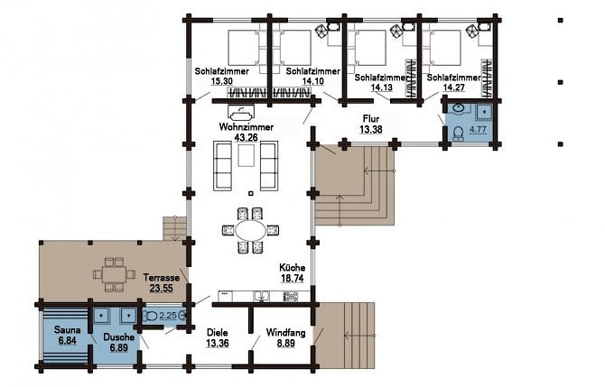
|  | Holzhaus "Terem"    200 m2   Brettschichtholz   mit Sauna   Preise auf Anfrage  Einstöckiges Holzhaus Terem mit Sauna ist aus Leinholz errichtet. Fläche ist 200 m2. Nehmen Sie mit uns Kontakt auf, wenn Sie Preise bekommen möchten. Holzhaus Terem stöckiges Haus mit einer Sauna geklebte Balken 200 m2 Preis auf Anfrage domokomplekta Holzhaus "Terem" einstöckigen Haus mit Sauna geklebt BalkenDie gegenwärtige Zeit ist, dass macht uns glauben, und bei jedem Schritt rational berechnen handeln, jeden investierten Rubel. Unsere Firma ist in diesem Trend. Die Architekten haben ein einzigartiges Projekt eines einstöckigen Holzhaus mit einem Bad aus Furnierschichtholz für eine große Familie geschaffen. Sein Hauptmerkmal - die Rationalität in allem: bei der Verwendung von Wandmaterial, Anordnung der Räume, usw. Wir überprüft klar jedes Element des zukünftigen Hauses, suchte ein Haus zu schaffen, die zu einem Preis zur Verfügung stehen würde, und in seinem Layout - komfortabel und bequem. Wir haben es geschafft, es zu tun. Auf 200 m² der Gesamtfläche sind vier geräumige Schlafzimmer, Wohnzimmer, Küche und neben dem Haus zwei Terrassen. Sie fanden einen Platz für ein Auto, so dass ein Schutz vor der Sonne, regen und Schnee.Das Haus "Terem" hat alles, was für einen angenehmen Aufenthalt in ihm. Für den Bau, müssen Sie 103 Kubikmeter Wandmaterial - Furnierschichtholz. Die Kosten für Baumaterialien sollten mit Spezialisten zu prüfen, die andere Fragen über das Projektmanagement eines Holzhauses beantworten. Kaufen Sie dieses Haus, machen eine andere richtige Handlung in meinem Leben. HolzhausZimmer 6Wohnen 152 qmDie Gesamtfläche von 203,5 qmDachfläche 350 qmArea 1 Etage von 152 qmDas Volumen von 103 Kubikmeter Wänden.Ein Materialsatz Glulam 200h200mm       Mehr sehen:Sehen Sie sich eine Videobewertung dieses Holzhauses "Mirage":16 Unsere Handelsvertreterin in Deutschland:Dildora Salata (deutsche Sprache) ArchiLine Deutschland | 
| © 2025 
Holzhäuser Archiline Ob. Bergäcker 18, 79805 Eggingen, Deutschland Die Seite wird betrieben von Nestorclub.com | |