 
 
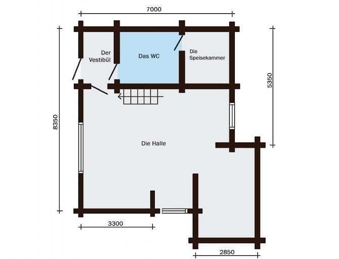
|  | Haus aus Holz "Aschaffenburg" - 73m2 - Rundholz - Preise auf Anfrage Das Haus aus Holz "Aschaffenburg" 73m2 hat eine merkwürdige Besonderheit: im Sommer ist es dort kühl und im Winter ist es warm. Dieses Haus ist eine besondere Stelle für die Sammlung einer Familie und ein perfekte Stelle für die Erholung. Unsere Gesellschaft bietet ein kleines, aber komfortables und schönes Haus, das aus dem Rundholz von D180mm gebaut ist. Das Haus "Aschaffenburg" hat die Sommerküche, die Gesamtfläche ist zirka 52 m2, und der Bereich der Küche - ein wenig mehr als 20 m2. Abgesehen von der Sommerküche, bietet das Haus Platz für zwei Zimmer - ein Schlafzimmer im ersten Stock und ein Gästezimmer im Erdgeschoss. Ohne Zweifel, verbringen Sie hier eine Menge unvergessliche Tage. 
     Die Innenansichten finden Sie hier.                   37 Unsere Handelsvertreterin in Deutschland:Dildora Salata (deutsche Sprache) ArchiLine Deutschland | ||||||||||||||||||||||
| © 2025 
Holzhäuser Archiline Ob. Bergäcker 18, 79805 Eggingen, Deutschland Die Seite wird betrieben von Nestorclub.com | |||||||||||||||||||||||