x
≡ Menü
Über Uns Gallerie Kontakt Impressum

Haus aus Holz "Helena" - 327m2 - Rundholz - Preise auf Anfrage

video
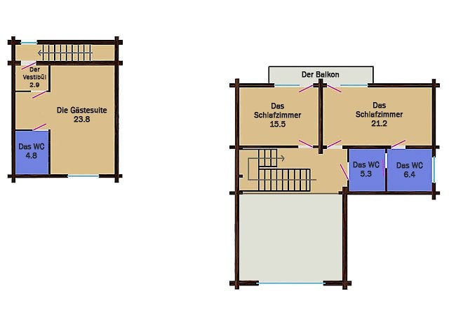
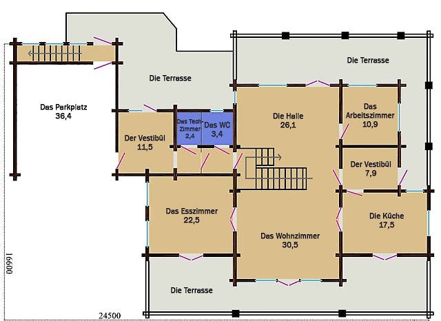
Haus aus Holz "Helena" - 327m2 - Rundholz - Preise auf Anfrage  Dieses Projekt des Sommerblockhauses „Helena" beindrückt durch seine Abmessungen und den einzigartigen und originellen architektonischen Gestaltung. Das kompakte und gemütliche Haus "Helena" ist für die Erholung im Freien bestimmt und hat eine Menge Vorteile. Unter die Vorteile möchten wir die Verfügbarkeit von zwei Terrassen, Parkplatz, getrennte Gästesuite im ersten Stock und ein persönliches Arbeitszimmer im Erdgeschoss aufzuzeigen. Mit dem Erdgeschossplan können Sie ihre kühnsten Designfantasien zu verwirklichen. Die Schlafzimmer, die im ersten Stock stattfinden, werden Ihnen helfen, von dem öffentlichen Bereich des Hauses zu isolieren und die Ruhe zu genießen. Jede Fassade ist originell aber zustimmt harmonisch mit dem gesamten Bild des Hauses. Das Sommerhaus "Helena" sieht einfach auf dem ersten Blick aus, aber es lohnt sich reinzugehen – Sie werden anspruchslosen aber bequemen und stillvollen Innenraum vermerken, der Sie sehr tief beindrücken werden.

Zimmer4
Die Wohnfläche93,21m2
Die Gesamtfläche327,73m2
Die Erdgeschossfläche173,50m2
Die Erstenstocksfläche86,62m2
Die Wandstärke197,75 m3
Der Wandmaterial (andere Varianten sind auch zulässig)Das Rundholz D260 der natürlicher Feuchtigkeit
Der PreisKontaktieren Sie uns bitte, um den Preis dieses Holzhaus in Ihrem Gebiet zu erfahren
* Die Preise hängen davon ab, welcher Baumaterial man bei der Bau benutzt: Rundholz, Profilholz oder Brettschichtholz.


Das Sommerblockhaus Helena 327m2

Das Sommerblockhaus Helena 327m2

Das Sommerblockhaus Helena 327m2

Das Sommerblockhaus Helena 327m2
Der Erdgeschossplan:
Das Sommerblockhaus Helena 327m2

Das Sommerblockhaus Helena 327m2

Mehr sehen:

Sehen Sie sich eine Videobewertung dieses Holzhauses " White House":

Sehen Sie eine 3D-Tour dieses Holzhauses " White House ":

Haus aus profiliertem Furnierschichtholz "White House":

Mehr sehen:

Sehen Sie sich eine Videobewertung dieses Holzhauses "Mirage":

Sehen Sie eine 3D-Tour dieses Holzhauses "Mirage":

Haus aus profiliertem Brettschichtholz "Mirage" 99m2:

Mehr sehen:

Die 3D-Tour der Holzhäuser "Mirage" und "White House" in Gläsern der virtuellen Realität im Büro von ArchiLine Wooden zu sehen. Klick hier!



75




Unsere Handelsvertreterin in Deutschland:

Dildora Salata (deutsche Sprache) ArchiLine Deutschland
+4915207341719 Viber, WhatsApp)
Website: www.karllorenz.com
Ob. Bergäcker 18, 79805 Eggingen Google Maps


Wir sprechen Deutsch und Englisch:

+375298-06-05-67 WhatsApp, Viber, Telegram

Wenn Sie haus aus Holz "Helena" - 327m2 - Rundholz - Preise auf Anfrage kaufen möchten, können Sie:



Mehr aus Abschnitt Holzhaus 200m2 - 400m2

    Ein durchdachter Grundriss mit einer offenen Küche und geräumigen Zimmern. Neben zwei Balkonen, einer Garage für zwei Autos und einer großen Terrasse bietet das Holzhaus Gotha allen erdenklichen Komfort. Dank dem Luftraum bekommt das Haus ...
      Das Holzhaus Werdau ist gut für kleine Grundstücke geeignet und bietet dabei eine große Wohnfläche. Das Dachgeschoss ermöglicht Verteilung einiger Zimmer, die aber wegen der Höhe eher für Kinder bequem sind. Nach dem Wunsch des Bauherrn können die ...
        Das Holzhaus Annaberg ist märchenhaft und modern. Große Fenster lassen viel Tageslicht hinein und lassen das Haus geräumiger erscheinen. Das Obergeschoss bekommt viel Licht dank den Dachfenstern. Das Satteldach mit Dachziegel macht das Haus einem ...
          Das Holzhaus LandhausDie Gesamtfläche von 219,32 qm.Die Wohnfläche 150 qm.Dachfläche 304,04 qmDie Menge an Wandmaterial 135,12 m. Cu.Set Wandmaterial sind auch andere Varianten möglich Balks 200x150 Holzhaus mit zwei Etagen des Profilträgers, das ...
            Träumen Sie von einem Holzhaus für eine große Familie? Wir bieten Ihnen ein zweistöckiges Holzhaus "Augsburg" aus Brettschichtholz an, das auch aus Rundholz oder Kantholz errichtet werden kann. Die Fläche beträgt 215 m2. Holzhaus Dakapo Zimmer 6 ...
              Ein klassisches französisches Projekt des privaten Hauses aus dem profilierten Kantholz entwerfen lassen. Das Haus ist ergonomisch, mit der praktischen Planung und der einfachen zuverlässigen Konstruktion. Dieses Projekt des Holzhauses ...
                Das Blockbohlenhaus Triptis kann als Ferienhaus genutzt werden. Neben den konventionellen Räumen wie Schlafzimmern, Wohnzimmer und einer Küche findet man hier auch eine Sauna, einen Ruheraum und ein Billardzimmer. Ein Reetdach fesselt den ...
                  Das Blockbohlenhaus Radeberg hat eine offene Küche und ein geräumiges Wohnzimmer. Das Holzhaus zeichnet sich durch 2 Fenstererker aus, die gemütliche Ecken zum Entspannen bieten und die der Innenansicht einen klassischen Charme ...
                    Das geräumige Blockbohlenhaus Mühlhausen wird aus Brettschichtholz errichtet. Im Holzhaus verteilen sich 4 Schlafzimmer, eine offene Küche, ein Wohnzimmer, 3 Badezimmer, Ankleideräume und ein Fitnessraum. Alles ist bis ins ...
                      Die Wände bestehen aus 200 mm starken verleimten Blockbohlen. Für das Holzhaus können unterschiedliche Wandstärken gewählt werden, außerdem bieten wir eine Möglichkeit an, das Blockhaus aus massiven Vierkant- oder ...
                        Das Blockbohlenhaus Meiningen hat ein hohes Dachgeschoss mit dem Reich der Besitzer und einem geräumigen Badezimmer. Der Mittelpunkt des Holzhauses ist jedoch das großzügige Wohnzimmer mit offenem Essbereich und überdachter ...
                          Chalet Holzhaus Wallgau bietet eine Menge Platz auf einer Ebene wie für Senioren, als auch für die jungen Familien. Durch die Diele gelangt man in alle Räume des Hauses, sowie in den Wohnbereich mit großem Wohnzimmer. Die ...
                          © 2026
                          Holzhäuser Archiline
                          Ob. Bergäcker 18, 79805 Eggingen, Deutschland

                          Die Seite wird betrieben von Nestorclub.com