x
≡ Menü
Über Uns Gallerie Kontakt Impressum

Entwurf und Bau von Holzkirchen, Kapellen und Tempeln
Architekten von Holzhäusern in Deutschland

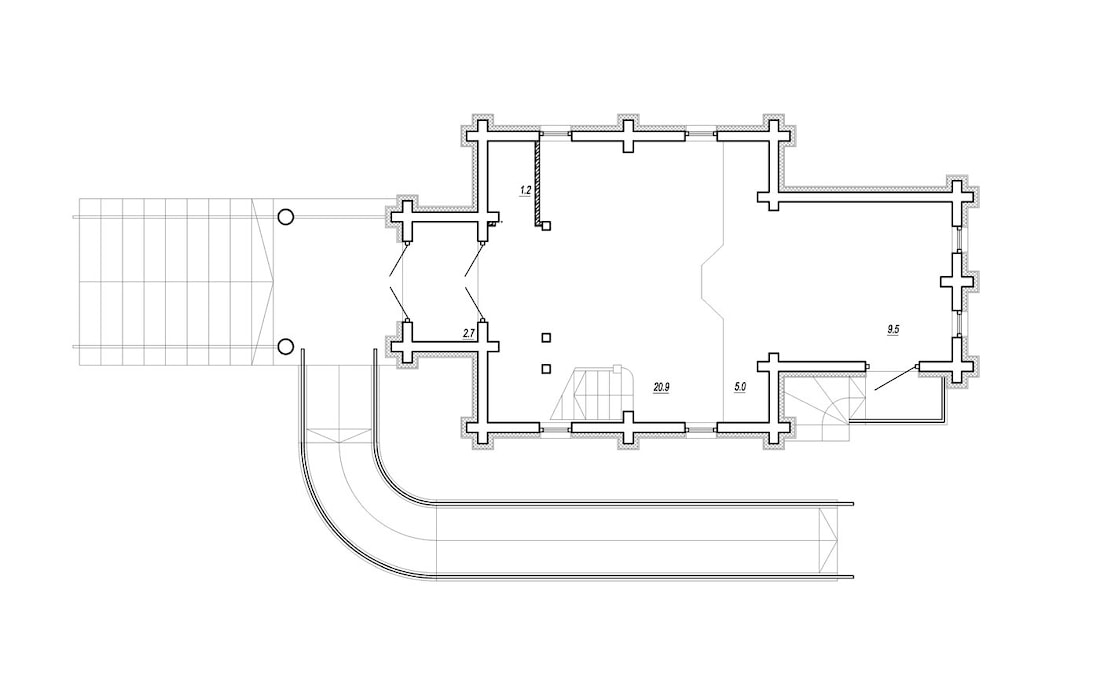
Entwurf und Bau von Holzkirchen, Kapellen und Tempeln   Der Entwurf und Bau von Kirchen, Kapellen und Tempeln aus Holz beginnt mit einer Arbeitsskizze und der Erstellung des Erscheinungsbildes des Bauwerks, es werden auch technische Lösungen erstellt, die an die äußere und innere Infrastruktur, einen Grundriss, die Einhaltung von Vorschriften und Traditionen von Gebäuden gebunden sind dieser Art und Zweck entwickelt. Das Projekt wird von einem Team von Architekten und Designern unseres Unternehmens sowie Ingenieuren anderer Fachgebiete erstellt, die Heizungs-, Lüftungs-, Strom- und Wasserversorgungssysteme für Kirchen entwerfen. Dieser Artikel enthält ein fertiges Projekt der Kirche, das unsere Spezialisten entworfen, produziert und gebaut haben
Moderne Technologien und Erfahrung ermöglichen unseren Spezialisten die Entwicklung komplexer Projekte

Der Entwurf und Bau von Holzkirchen durchläuft mehrere Phasen:
Erster Vorschlag, der eine Skizze der zukünftigen Kirche enthält
Vorläufiges Design
Ein Arbeiterprojekt, das die Baupläne enthält, die für die Produktion für den Bau benötigt werden
Genehmigungspflichtiger Teil des Projekts

Das Kirchenprojekt umfasst auch die folgenden Abschnitte:
Architektur: Von einem Architekten entworfen
Konstruktiv: von einem Designer durchgeführt, beinhaltet Zeichnungen und statische Berechnungen
Verwandte: Lüftung, Heizung, Sanitär, Kanalisation, Elektrotechnik wird von Ingenieuren verwandter Fachrichtungen erstellt

Nach der Erstellung des Projekts der Holzkirche beginnt die Arbeit von Ingenieuren und Produktionsmeistern. Je nach Projekt stellen sie eine Kirche aus dem im Projekt festgelegten Material her: Rundholz, profilierte oder verleimte Balken. Es folgt die Übergabe der Kirche an eine vorgefertigte Stiftung mit eingebrachten Mitteilungen gemäß dem Projekt der Kirche. Die Bauarbeiter, Monteure, die die Kirche gemäß dem Projekt bauen werden, beginnen mit der Arbeit. Der Projektarchitekt erscheint periodisch auf der Baustelle, überwacht den Baufortschritt, berät Bauherren im Rahmen der Bauaufsicht bei der baulichen Umsetzung des Kirchenprojekts.
Der Bau von Holzkirchen, Kapellen, Tempeln erfordert ein gutes Projekt. Das Architektur- und Bauunternehmen "ArchiLine" bietet hochwertige Projekte von Holzkirchen und -tempeln nach eigenem Entwurf an oder entwickelt diese gemeinsam mit Ihnen. Das Bauunternehmen "ArchiLine" hat Erfahrung im Bau von Tempeln, Kirchen, Kapellen. Wir entwerfen, fertigen und bauen eine Kirche aus Baumstämmen oder Balken. Wenn Sie uns kontaktieren, lernen Sie unsere Projekte einer orthodoxen Holzkirche und Kirche kennen.







Unsere Handelsvertreterin in Deutschland:

Dildora Salata (deutsche Sprache) ArchiLine Deutschland
+4915207341719 Viber, WhatsApp)
Website: www.karllorenz.com
Ob. Bergäcker 18, 79805 Eggingen Google Maps


Wir sprechen Deutsch und Englisch:

+375298-06-05-67 WhatsApp, Viber, Telegram

Wenn Sie entwurf und Bau von Holzkirchen, Kapellen und Tempeln kaufen möchten, können Sie:



Mehr aus Abschnitt Design von Holzhäusern in Deutschland

    Bauprojekt eines Holzhauses aus Baumstämmen, Leimbindern, Profilbalken. Produktion, Verkauf von Fertig- und Standardprojekten - Preis 10 Euro / m2 Die Dienstleistungen der Planung eines Holzhauses, Stufe C, umfassen Abschnitte: 1.Hauptplan des ...
      Was ist BIM-Holzhausplanung? Building Information Modeling (BIM) - ins Russische übersetzt: Building Information Modeling. Die Abkürzung bezeichnet eine Reihe von Aktivitäten und Arbeiten zur Verwaltung des Lebenszyklus eines Gebäudes, vom Projekt ...
        Was ist BIM House Design? Building Information Modeling (BIM): Die Abkürzung steht für eine Reihe von Maßnahmen und Arbeiten, die den Lebenszyklus eines Gebäudes vom Entwurf bis zum Rückbau steuern. BIM-Technologien umfassen die Planung, den Bau, ...
          Design von Holzhotels und Erholungszentren, Campingplätzen aus Holz, Leimholz und Baumstämmen, Verkauf von fertigen Projekten - Preis ab 10 Euro / m2 Individuelle Gestaltung von Hotels und Hotels in Deutschland Die Spezialisten des Architektur- und ...
            Zum Verkauf steht ein neues Holzhaus, das hergestellt und montagefertig ist Zweistöckiges Holzhaus aus einer Bar. Wandmaterial: Profilholz mit natürlicher Feuchtigkeit. Stangenabschnitt: 180 x 180 mm. Hausgröße: 5,4 x 8,1 Meter Hausfläche: 58,3 qm. ...
              Die Gestaltung von Holzhäusern erfolgt in 5 Phasen: Persönliches Treffen des Kunden mit dem Architekten von Holzhäusern; Ein Holzhaus an ein Grundstück binden Koordination des Entwurfsentwurfs eines Holzhauses Erlangung einer Genehmigung für den Bau ...
                Groß fängt klein an. Dieses Prinzip ist für viele Millionen Jahre unerschütterlich. Wo Gestaltungsbedarf besteht, wenn nicht für Jahrhunderte, so doch für Jahrzehnte, handeln sie entsprechend: Sie schaffen etwas, von dem man abstoßen kann, was ...
                  Architekturskizze Entwurf eines Holzhauses aus Baumstämmen und Balken - Projektpreis 10 Euro / m² Das eigene hochprofessionelle Architekturbüro von ArchiLine realisiert individuelle Projekte von Holzhäusern: von Rundholz, Profilbalken und Leimholz ...
                    Entwurf und Bau eines Holzhotels "Emir" Hotel in den Vereinigten Arabischen Emiraten, Persischer Golf Ein manipuliertes Holzhotel am Ufer des Arabischen Golfs in einem Themen-Wasserpark in der Nähe von Dubai in den Vereinigten Arabischen Emiraten. ...
                      Entwurf und Bau eines Holzhotels "Emir" Hotel in den Vereinigten Arabischen Emiraten, Persischer Golf Ein manipuliertes Holzhotel am Ufer des Arabischen Golfs in einem Themen-Wasserpark in der Nähe von Dubai in den Vereinigten Arabischen Emiraten. ...
                        Landschaftsgestaltung in der Nähe eines Holzhauses Wir alle wissen seit langem, wie sich ein bestimmtes Farbschema, eine Umgebung und ein bestimmter Stil auf unseren emotionalen Zustand, unsere psychische Gesundheit und unser Selbstwertgefühl im ...
                          Schlüsselfertiges Projekt eines Holzhauses. Ein fertiges Projekt eines Holzhauses aus Holz mit einem vollständigen Satz von Dokumenten, die für einen Bauträgerpass und die Erlangung einer Baugenehmigung für die Installation eines Gebäudes ...
                          © 2025 Holzhäuser Archiline
                          Ob. Bergäcker 18, 79805 Eggingen, Deutschland
                                                            

                          Die Seite wird betrieben von Nestorclub.com